For the past year, I’ve been writing a column for Caught By The River, exploring the River Taff. My latest piece veers off course from the Taff and heads for the land in between the Taff and the River Ely, a place known as Penarth Moors – unassuming marshland before being turned into a municipal dump in the 1970s.
Here’s the piece in full – Wandering the River Taff: A Detour
But as usual, there was loads of stuff I couldn’t fit in the shorter piece, so I thought I’d sketch out all my research here. This is the area I’m talking about.

This was taken on a sunny day in late autumn 2017 …

At the end of their river flows, both the Ely and the Taff dump their waters into the same large basin (formerly the estuary – now the grander container that has given its name to the area surrounding it: into Cardiff Bay).
As well as ending in the same place, the Ely and the Taff have other parallels. Both have suffered the same extreme pollution problems: declared “dead rivers”, flowing black with sewage, coal dust and industrial waste they had picked up from the heavy industry of the valleys they flow through. Thanks to regulation and a lot of effort, both are in better shape than they were, and are now home to a variety of flora and fauna.
Both rivers have also had their natural courses altered by man: each straightened in sections to better fit our urban plans. The Taff was straightened by Isambard Kingdom Brunel in the 19th century to build Cardiff Central Station, while the Ely was straightened over a century later – less glamorously, to create more space for the Ferry Road landfill site.
Here’s a map of the same place from 1956 (From this NLS Map: ST17 (includes: Cardiff / Caerdydd; Penarth), published 1956). Note the mad wiggling of the River Ely as it heads out towards the Severn and compare with the map above.

The Ferry Road landfill was created in 1969 when the Ely was straightened by cutting off one of its bends. The empty river channel became a hole for Cardiff to throw all its crap into. The city soon outgrew this hole, and we started dumping our waste across the salt marsh. By the time the tip was closed in 1994, it was one of the biggest in Britain.
At the height of its seafaring power, Cardiff was the biggest port in the world. But the city’s decline in fortunes over the 20th century was so severe, the topic was debated in Parliament repeatedly. After years of discussion, eventually, in 1987, the UK Government created the Cardiff Bay Development Corporation, whose job was to improve or upgrade south Cardiff’s infrastructure and develop a plan for its future use. The Ferry Road and Ely Fields redevelopment was part of the much bigger project of building the Cardiff Bay Barrage, creating an artificial freshwater lake around the city’s waterfront area, covering 490-acres formed from the impounded waters of the Rivers Taff and Ely. It was a hugely controversial project, contested throughout its life. It still draws mixed reviews from residents.
The Cardiff Bay Barrage Bill only just squeaked through Parliament – you can read some of the debate (including discussion about what would happen to the Ferry Road tip) in the Hansard from 25 November, 1991.
Reading through the debate, you get a sense of the enormous complexity of the project. Regeneration of the area is of key importance … but much of the land is taken up by SSSI (sites of special scientific interest because of the flora or fauna). But for me, a key point is from Barry Jones MP (Alyn and Deeside):
There can be no doubt about the need for urban regeneration in the Cardiff docklands. The docks of Cardiff were at the centre of the coal-based prosperity of south Wales. Coal from the valleys of south Wales made Cardiff the world’s leading coal-exporting port. The decline of the docks has mirrored the decline of the south Wales coal industry. Now, with fewer than 2,000 workers in our pits, Cardiff docklands must find a new identity and a new prosperity.
As part of the plans to improve the area, the Corporation proposed a new A road to link south and west Cardiff with the M4. The plan for this road – which is now the A4232, a road I drive on nearly every day – plotted its route straight through the middle of the tip. Once earthworks began, tipping was restricted just to the area to the north of the A4232. By the mid 1990s, this area towered almost 20 metres above the surrounding area.
If you’re interested in really getting into the detail of the area, this image is a 1960s aerial photograph of the area. It’s taken from a PhD submitted by a Cardiff University student in 2006: Development of Geoelectrical Techniques for Investigation and Monitoring of Landfills, by Andrew George.

Fast forward through time to 1988, and you can see how the river was shortened through diversion, and filled with rubbish. This next image is taken from the same publication …

This 1988 air photograph of the Ferry Road area shows how far the landfill extended from the initial river channel. It also shows the proposed development route for the A4232 – right through the centre of the site.
This view is from inside Grangemoor Park today, underneath the A4232 flyover. It’s fairly quiet, apart from the cars tearing along overhead.

The A4232 neatly splits the site into its two locations: Ferry Road landfill to the north, and Ely Fields to the south. The land of Ely Fields used to be brickworks, rope works, storage depots and scrapyards. A different kind of ‘Elysian’ – a distinctly south Walian, industrial one. Memories of our industrial history – industries we can no longer support, now Cardiff’s not the port it used to be. So a tip was what it became: shovelling endless tonnes of rubbish onto our heritage: burying it deep, deep underneath the consumerism of the 1970s and 80s.
As I mentioned in my Caught By The River post, during its lifetime, the Ferry Road municipal tip amassed four million cubic metres of household and commercial refuse. The initial plan to move all this crap to Bedford by rail was poo-pooed in the end, and the Cardiff Bay Corporation instead decided to pile all the rubbish up in one place, add an impermeable layer on top (which is why the park turns into a bog whenever it rains), and create a city park.
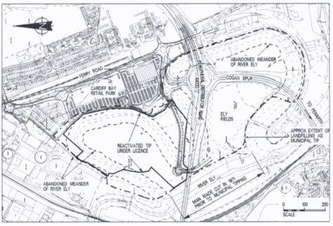
The following image shows you the detail around the layout of Grangemoor Park, including the extent of the old landfill site. This was taken from The Reactivation and Remediation of the Landfill Site at Ferry Road by A. Phillips and H. Cherrill, in Geoenvironmental Engineering: Contaminated Ground: Fate of Pollutants and Remediation.

Whatever you think about out-of-town shopping complexes, I don’t think anyone would complain about having a park replacing a landfill. Would you?? Go on. Just try it. Urban wildlife flourishes here. There are butterflies, endless insects, skylarks and other birds. I’ve read that the pond at the bottom of the site has various species of newts, dragonfly and damselfly (although everytime I wander past the only thing floating around in the water is empty McDonald’s wrappers).
As well as the birds and squirrels I see on the site (and the rats and foxes my dog goes mad sniffing after when we walk), the site is also now being used for refugee animals being turfed off their homelands. In 2006, 850 slow worms were moved to the park from a local housing development (the new houses and flats you can see on the other side of Ferry Road). The slow worms have not only survived but babies have been found – apparently the mix of tall grass and small bushes is an ideal habitat for the worms. They like mosaics – of shaded areas where they can hide and rest, and areas which are exposed to the sun where they can bask and increase their body temperature.

Stand on the link artwork at the top of the hill. Look south. See rising lands ahead of you: this marks the edge of Cardiff and the start of the Vale of Glamorgan. Leckwith behind all the hills. And then the River Ely, gently winding around you.

The peaked building in the centre of this shot above is the charmingly named “Outfall Sewer Cardiff (Western District)” (known today as the Pumping Station or the Pump House). It was built in 1907 by engineer William Harper, who’s been mentioned in this column before (he designed and built much of modern Cardiff, specifically the Clarence Road Bridge, which I wrote about last time). This Edwardian Sewage pumping station is formed of a single storey yellow brick building with slate roof and six round headed bay windows with red brick arches. If you visit it today, your experience is a far more sanitary one: there’s a nice little cafe, and vendors dealing in antiques and collectibles in the 32,000 square feet of the place.
Back to the chain link sculpture at the top of the hill. Look down, right there, by your feet: the flatpack mixture of the same out-of-town shopping offerings you’ll find in any of these man-made hubs. It’s where you’ll find our Ikea – on weekdays, full of confused students whose parents are trying to help them kit up and grow up, as if adulthood comes flatpacked, accompanied by a set of tumblers and some candles.
But look beyond, to the north, beyond Ikea, to the maritime-inspired spikes of the Millennium Stadium. You see the city spread around you, like a glossy plastic puzzle that you could reach out to and move pieces around in. Closer to the lens, you see Cardiff, the buildings like tiny toys – for so long, the city kept from building upwards to “preserve the skyline of the city” (what skyline, you might well ask). Integrity now forgotten, they’re bollocking high rise up everywhere they can. The Millennium Stadium, the BT Tower. It looks like one of those pop up cards that show you the city you live in as a weird, 3D-2D image. The mountains that invite you to the Welsh valleys to the north; the Garth, Machen Quarry. Even Castle Coch is visible on a clear day, if you’ve got eyes like a shithouse rat.

We’re a city that’s poor, iconically, which is perhaps why we’ve struggled to market ourselves effectively. We have no Clifton Suspension Bridge, no Museums of Science and Industry. No huge glass structures, or sculptures standing on the tides. Without a visual soundbite that works in silhouette, a visual catchphrase, what are we?
I’ve always thought that Cardiff was more of a feeling than anything that’s easy to explain through leaflets or website copy. Maybe that’s why so many first time visitors come here expecting little, but leave with an inexplicably warm glow about them.
Further reading:
- Ely Fields & the BT IDC (from Real Cardiff Two), Peter Finch
- Development of Geoelectrical Techniques for Investigation and Monitoring of Landfills, Andrew George, 2006
- Earthstar blog
- Outdoor Cardiff: Ely Trail
- VHE Case Study: Ferry Road Tip
- River Ely survey ‘could tackle wider pollution issues’ (BBC) 2017
- Glamorgan Anglers Club: River Ely
- Historians commemorate sinking of SS Lunan in River Ely in 1941 (Penarth Daily News) 2017
- Capital Cardiff 1975-2020: Regeneration, Competitiveness and the Urban Environment
Alan Hooper, John Punter, (University of Wales Press) 2006 - Geoenvironmental Engineering: Contaminated Ground : Fate of Pollutants and Remediation, Raymond N. Yong, H. R. Thomas, Thomas Telford, 1997
***
- Sign up for the weekly We Are Cardiff newsletter
- Check out what’s going on with We Are Cardiff Press
- Like us on Facebook
- Squawk @ us on Twitter @wearecardiff
- Follow us on Instagram/WeAreCardiff
- Follow our rescue dog adventure Instagram/ZeldaPooch





















